|
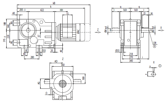
Монтажное исполнение фланец (тип-С)

| d |
to1 |
l |
l3 |
l4 |
t |
u |
i |
q |
DR |
90 *) |
m6 |
170 |
140 |
15 |
95 |
25 |
210 |
345 |
M24x50 |
100 |
m6 |
210 |
180 |
15 |
106 |
28 |
250 |
385 |
| Мотор |
K148
k |
kB |
AC |
AD |
AG |
LL |
HH |
O |
Вес
K148 |
LA100L |
944.0 |
1 025.0 |
195.0 |
168.0 |
120 |
120 |
104.0 |
2xM32x1.5 |
319 |
LA100ZL |
1 014.0 |
1 095.0 |
195.0 |
168.0 |
120 |
120 |
236.0 |
2xM32x1.5 |
329 |
LA112M |
969.5 |
1 050.5 |
219.0 |
181.0 |
120 |
120 |
105.5 |
2xM32x1.5 |
331 |
LA112ZM |
997.5 |
1 078.5 |
219.0 |
181.0 |
120 |
120 |
209.5 |
2xM32x1.5 |
338 |
LA132S/M |
1 028.5 |
1 130.5 |
259.0 |
195.0 |
140 |
140 |
145.0 |
2xM32x1.5 |
340 |
LA132ZM |
1 074.5 |
1 176.5 |
259.0 |
195.0 |
140 |
140 |
253.0 |
2xM32x1.5 |
361 |
LA160M/L |
1 128.0 |
1 246.5 |
313.5 |
227.0 |
165 |
165 |
167.5 |
2xM40x1.5 |
379 |
LA160ZL |
1 176.0 |
1 294.5 |
313.5 |
227.0 |
165 |
165 |
320.5 |
2xM40x1.5 |
418 |
LG180M/L |
1 187.5 |
1 309.5 |
348.0 |
322.5 |
260 |
192 |
184.5 |
2xM40x1.5 |
470 |
LG180ZM/ZL |
1 238.5 |
1 360.5 |
348.0 |
322.5 |
260 |
192 |
184.5 |
2xM40x1.5 |
500 |
LG200L |
1 243.5 |
1 369.5 |
385.0 |
301.0 |
260 |
192 |
214.5 |
2xM50x1.5 |
550 |
LG225S |
1 314.5 |
1 553.5 |
442.0 |
325.0 |
260 |
192 |
250.5 |
2xM50x1.5 |
626 |
LG225M |
1 314.5 |
1 553.5 |
442.0 |
325.0 |
260 |
192 |
250.5 |
2xM50x1.5 |
614 |
LG225ZM |
1 374.5 |
1 613.5 |
442.0 |
325.0 |
260 |
192 |
250.5 |
2xM50x1.5 |
672 |
K4-LGI250M |
1 601.5 |
1 826.5 |
495.0 |
392.0 |
300 |
236 |
469.5 |
2xM63x1.5 |
794 |
K4-LGI250ZM |
1 671.5 |
1 896.5 |
495.0 |
392.0 |
300 |
236 |
469.5 |
2xM63x1.5 |
897 |
Монтажное исполнение на фланце (тип A)

| Мотор |
KF148
k |
kB |
AC |
AD |
AG |
LL |
HH |
O |
Вес
KF148 |
LA100L |
940.0 |
1 021.0 |
195.0 |
168.0 |
120 |
120 |
104.0 |
2xM32x1.5 |
349 |
LA100ZL |
1 010.0 |
1 091.0 |
195.0 |
168.0 |
120 |
120 |
236.0 |
2xM32x1.5 |
359 |
LA112M |
965.5 |
1 046.5 |
219.0 |
181.0 |
120 |
120 |
105.5 |
2xM32x1.5 |
361 |
LA112ZM |
993.5 |
1 074.5 |
219.0 |
181.0 |
120 |
120 |
209.5 |
2xM32x1.5 |
368 |
LA132S/M |
1 024.5 |
1 126.5 |
259.0 |
195.0 |
140 |
140 |
145.0 |
2xM32x1.5 |
370 |
LA132ZM |
1 070.5 |
1 172.5 |
259.0 |
195.0 |
140 |
140 |
253.0 |
2xM32x1.5 |
391 |
LA160M/L |
1 124.0 |
1 242.5 |
313.5 |
227.0 |
165 |
165 |
167.5 |
2xM40x1.5 |
409 |
LA160ZL |
1 172.0 |
1 290.5 |
313.5 |
227.0 |
165 |
165 |
320.5 |
2xM40x1.5 |
448 |
LG180M/L |
1 183.5 |
1 305.5 |
348.0 |
322.5 |
260 |
192 |
184.5 |
2xM40x1.5 |
500 |
LG180ZM/ZL |
1 234.5 |
1 356.5 |
348.0 |
322.5 |
260 |
192 |
184.5 |
2xM40x1.5 |
530 |
LG200L |
1 239.5 |
1 365.5 |
385.0 |
301.0 |
260 |
192 |
214.5 |
2xM50x1.5 |
580 |
LG225S |
1 310.5 |
1 549.5 |
442.0 |
325.0 |
260 |
192 |
250.5 |
2xM50x1.5 |
656 |
LG225M |
1 310.5 |
1 549.5 |
442.0 |
325.0 |
260 |
192 |
250.5 |
2xM50x1.5 |
644 |
LG225ZM |
1 370.5 |
1 609.5 |
442.0 |
325.0 |
260 |
192 |
250.5 |
2xM50x1.5 |
702 |
K4-LGI250M |
1 597.5 |
1 822.5 |
495.0 |
392.0 |
300 |
236 |
469.5 |
2xM63x1.5 |
824 |
K4-LGI250ZM |
1 667.5 |
1 892.5 |
495.0 |
392.0 |
300 |
236 |
469.5 |
2xM63x1.5 |
927 |
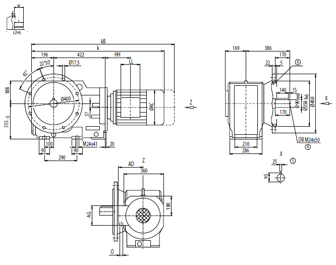
Монтажное исполнение корпус-фланец (тип C)

| d |
l9 |
M |
t |
u |
80 *) |
63.5 |
M20 |
85.4 |
22 |
90 |
72.0 |
M24 |
95.4 |
25 |
| Мотор |
KA148
k |
kB |
AC |
AD |
AG |
LL |
HH |
O |
Вес
KA148 |
LA100L |
944.0 |
1 025.0 |
195.0 |
168.0 |
120 |
120 |
104.0 |
2xM32x1.5 |
291 |
LA100ZL |
1 014.0 |
1 095.0 |
195.0 |
168.0 |
120 |
120 |
236.0 |
2xM32x1.5 |
301 |
LA112M |
969.5 |
1 050.5 |
219.0 |
181.0 |
120 |
120 |
105.5 |
2xM32x1.5 |
303 |
LA112ZM |
997.5 |
1 078.5 |
219.0 |
181.0 |
120 |
120 |
209.5 |
2xM32x1.5 |
310 |
LA132S/M |
1 028.5 |
1 130.5 |
259.0 |
195.0 |
140 |
140 |
145.0 |
2xM32x1.5 |
312 |
LA132ZM |
1 074.5 |
1 176.5 |
259.0 |
195.0 |
140 |
140 |
253.0 |
2xM32x1.5 |
333 |
LA160M/L |
1 128.0 |
1 246.5 |
313.5 |
227.0 |
165 |
165 |
167.5 |
2xM40x1.5 |
351 |
LA160ZL |
1 176.0 |
1 294.5 |
313.5 |
227.0 |
165 |
165 |
320.5 |
2xM40x1.5 |
390 |
LG180M/L |
1 187.5 |
1 309.5 |
348.0 |
322.5 |
260 |
192 |
184.5 |
2xM40x1.5 |
442 |
LG180ZM/ZL |
1 238.5 |
1 360.5 |
348.0 |
322.5 |
260 |
192 |
184.5 |
2xM40x1.5 |
472 |
LG200L |
1 243.5 |
1 369.5 |
385.0 |
301.0 |
260 |
192 |
214.5 |
2xM50x1.5 |
522 |
LG225S |
1 314.5 |
1 553.5 |
442.0 |
325.0 |
260 |
192 |
250.5 |
2xM50x1.5 |
598 |
LG225M |
1 314.5 |
1 553.5 |
442.0 |
325.0 |
260 |
192 |
250.5 |
2xM50x1.5 |
586 |
LG225ZM |
1 374.5 |
1 613.5 |
442.0 |
325.0 |
260 |
192 |
250.5 |
2xM50x1.5 |
644 |
K4-LGI250M |
1 601.5 |
1 826.5 |
495.0 |
392.0 |
300 |
236 |
469.5 |
2xM63x1.5 |
766 |
K4-LGI250ZM |
1 671.5 |
1 896.5 |
495.0 |
392.0 |
300 |
236 |
469.5 |
2xM63x1.5 |
869 |
|