
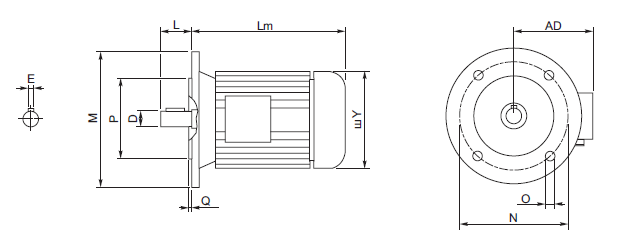
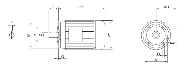
Размеры электродвигателя INNOVARI |
| |
| Размеры большого фланца B5 |
 |
| Размеры малого фланца B14 |
 |
Наружные размеры определяются производителем
ТИП
|
2 полюса |
4 полюса |
6 полюсов |
B5-B14 |
B5 |
B14 |
Вес кг |
kW |
Nm |
A (400V) |
kW |
Nm |
A (400V) |
kW |
Nm |
A (400V) |
D |
E |
L |
Lm |
Y |
AD |
P |
N |
M |
O |
Q |
P |
N |
M |
O |
Q |
56 A |
0.09 |
0.32 |
0.38 |
0.06 |
0.44 |
0.27 |
— |
— |
— |
9 |
3 |
20 |
179 |
108 |
96 |
80 |
100 |
120 |
9 |
2.5 |
50 |
65 |
80 |
M5 |
2.5 |
2.7 |
56 B |
0.12 |
0.42 |
0.46 |
0.09 |
0.67 |
0.37 |
— |
— |
— |
2.9 |
63 A |
0.18 |
0.63 |
0.60 |
0.12 |
0.84 |
0.50 |
0.09 |
0.99 |
0.57 |
11 |
4 |
23 |
185 |
120 |
99 |
95 |
115 |
140 |
9.5 |
3 |
60 |
75 |
90 |
M5 |
2.5 |
3.8 |
63 B |
0.25 |
0.87 |
0.76 |
0.18 |
1.30 |
0.69 |
0.12 |
1.32 |
0.74 |
4.2 |
71 A |
0.37 |
1.30 |
1.00 |
0.25 |
1.70 |
0.91 |
0.18 |
1.90 |
0.80 |
14 |
5 |
30 |
206 |
130 |
104 |
110 |
130 |
160 |
9.5 |
3.5 |
70 |
85 |
105 |
M6 |
2.5 |
5.9 |
71 B |
0.55 |
1.90 |
1.54 |
0.37 |
2.52 |
1.14 |
0.25 |
2.72 |
1.10 |
225 |
141 |
107 |
6.5 |
80 A |
0.75 |
2.60 |
1.85 |
0.55 |
3.77 |
1.51 |
0.37 |
3.84 |
1.18 |
19 |
6 |
40 |
256 |
159 |
127 |
130 |
165 |
200 |
11.5 |
3.5 |
80 |
100 |
120 |
M6 |
3 |
8.5 |
80 B |
1.1 |
3.90 |
2.64 |
0.75 |
5.11 |
2.57 |
0.55 |
5.84 |
1.80 |
10 |
90 S |
1.5 |
5.00 |
3.31 |
1.1 |
7.45 |
2.78 |
0.75 |
7.92 |
2.32 |
24 |
8 |
50 |
255 |
170 |
135 |
130 |
165 |
200 |
11.5 |
3.5 |
95 |
115 |
140 |
M8 |
3 |
12.5 |
90 L |
2.2 |
7.50 |
4.46 |
1.5 |
10.2 |
3.61 |
1.1 |
11.6 |
3.45 |
280 |
15 |
100 LA |
3.0 |
10.0 |
6.28 |
2.2 |
14.8 |
5.07 |
1.5 |
15.4 |
3.88 |
28 |
8 |
60 |
299 |
190 |
148 |
180 |
215 |
250 |
13 |
4 |
110 |
130 |
160 |
M8 |
3.5 |
20 |
100 LB |
— |
— |
— |
3.0 |
20.1 |
6.66 |
— |
— |
— |
22 |
112 M |
4.0 |
13.4 |
8.10 |
4.0 |
26.7 |
8.55 |
2.2 |
22.6 |
5.30 |
321 |
210 |
164 |
35 |
132 S |
5.5 |
18.3 |
11.2 |
5.5 |
36.5 |
11.4 |
3.0 |
30.2 |
7.20 |
38 |
10 |
80 |
365 |
244 |
180 |
230 |
265 |
300 |
14 |
4 |
130 |
165 |
200 |
M10 |
4 |
41 |
7.5 |
24.9 |
15.3 |
51 |
132 M |
— |
— |
— |
7.5 |
49.4 |
15.0 |
4.0 |
40.0 |
9.13 |
403 |
51 |
Класс изоляции обмоток
| Класс изоляции обмоток |
E |
B |
F |
H |
| Максимальная температура |
C° |
120° |
130° |
155° |
175° |
F* |
248° |
266° |
311° |
347° |
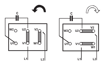
Схема подключения электродвигателей к питающей сети
 |
| Трёхфазный асинхронный односкоростной двигатель |
 |
| Трехфазный асинхронный двухскоростной двигатель |
 |
| Однофазный асинхронный двигатель |
|
| |